Статья-аннотация к одноименному вебинару для проектировщиков гидротехнических сооружений, изысканий и генплана. Содержит пояснения, уточнения и дополнительную профессиональную информацию.
Тема вебинара (https://youtu.be/VRyJtx8lXn8 ) и этой публикации была навеяна опытом общения сотрудников нашей компании со специалистами Академии водного транспорта, проектировщиками из ПАО «РусГидро» и другими инженерами, разрабатывающими проекты гидротехнических сооружений.
Большинству таких специалистов очень важно, чтобы программное обеспечение максимально принимало на себя решение повседневных рутинных задач, а также предоставляло возможность реализовать проект в виде информационной модели. Именно поэтому для подобных целей логично применять симбиоз программ из линейки nanoCAD (GeoniCS и BIM Конструкции), а также два модуля Платформы nanoCAD: «Растр» и «СПДС». Для сборки информационной модели и управления этой моделью есть смысл использовать СУИД CADLib Модель и Архив.
Далее мы приведем пять аргументов в пользу такого выбора, основываясь на задачах инженеров-проектировщиков гидротехнических сооружений. Для наглядности используем проект реконструкции плотины Айского водохранилища в Челябинской области (рис. 1).
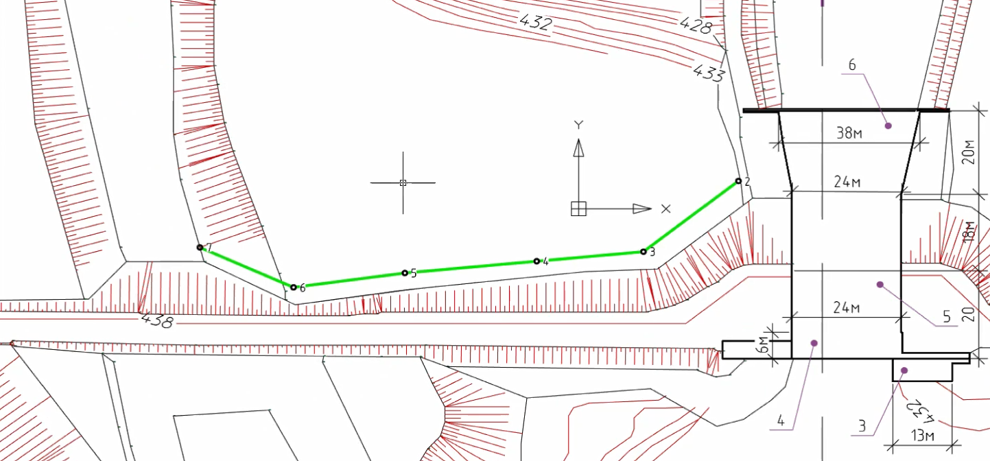
На территории плотины расположен комплекс сооружений: водозабор, галерея подъемных механизмов, мостовой переход и водосброс (рис. 2).

Рис. 1. Модель плотины Айского водохранилища
Плотина состоит из грунтовой насыпи с суглинистым ядром. В верхнем бьефе располагается водохранилище, в нижнем – низменная равнина с малоэтажной застройкой.

Рис. 2. Общий вид на объекты плотины
В ходе обследования было выявлено частичное разрушение железобетонных конструкций, понадобилась разработка документации для их замены, а та в свою очередь потребовала применения технологий информационного моделирования.
Итак, определим первый аргумент в пользу нашего выбора программного обеспечения.
Причина №1. Просто подготовить ЦММ на основе растрового изображения
Множество проектов гидротехнических сооружений разрабатывалось еще в советское время. Сейчас эта документация хранится на бумаге или, в лучшем случае, в сканах. Реконструкция же таких объектов происходит в наши дни, когда заказчик требует выполнять проект с помощью современных программ, в том числе с использованием ТИМ.
Для решения части этих задач существует модуль «Растр». Используя его, проектировщик значительно экономит время и нервы при подготовке подложки (рис. 3). Это достигается благодаря автоматической векторизации сканированного растрового изображения.
Загружаем объект, выполняем нехитрые настройки, получаем полилинии и текстовые объекты в плоскости.

Рис. 3. Растровая топографическая подложка
Используем бесплатную LISP-утилиту «Isolines» для автоматического размещения объектов топографии по высотным отметкам и получения структурных линий.
Далее при помощи инструментов nanoCAD GeoniCS запускаем процесс создания поверхности. Результат представляет собой триангуляционную сетку (рис. 4).

Рис. 4. Триангуляционная поверхность рельефа местности
Таким образом формируется поверхность, основанная на данных структурных линий. Напомним, что nanoCAD GeoniCS обладает и другими возможностями загрузки исходных данных – например, из файлов точек.
Как мы преобразовывали растровую подложку, можно посмотреть в записи нашего вебинара (https://youtu.be/VRyJtx8lXn8?t=404).
Причина №2. Можно работать со слоями инженерно-геологических изысканий
На сегодняшний день экспертиза не требует 3D-представления изысканий, но без этих данных ЦММ не может быть полноценной. Тем более когда модель местности выполняется с использованием технологий информационного моделирования.
Кроме того, в нашем случае подгрузка таких данных осуществляется для автоматического построения поперечного сечения и оформления чертежа конструкции тела грунтовой плотины.
Итак, выбираем меню Рельеф и щелкаем по вкладке Утилиты для поверхности. Создаем поверхность из 3D-граней, выделяем триангуляцию по слою и формируем поверхность инженерного изыскания (рис. 5).

Рис. 5. Подгруженные поверхности ИГИ
Аналогичные операции проделываем с остальными поверхностями.
Как мы загружали изыскания, смотрите в нашем видео (https://youtu.be/VRyJtx8lXn8?t=960 ).
Причина №3. Удобно проектировать инженерные сети
В рамках проекта от нас требовалось запроектировать дренажную сеть. Эту задачу мы выполнили в модуле «Сети» программного комплекса nanoCAD GeoniCS. Модуль автоматизирует трассировку инженерных коммуникаций, оснащен средствами создания сводного плана инженерных сетей.
Задаем настройки для автоматизированной проверки нормативных расстояний и выполняем трассировку сети (рис. 6).

Рис. 6. Трасса дренажного канала в плане
Переходим в редактор профиля сети. Используя специальные команды, задаем параметры. После этого происходит синхронизация, благодаря которой изменения положения сети отображаются одновременно и в профиле сети (рис. 7), и в 2D-, и в 3D-представлении.

Рис. 7. Продольный профиль сети дренажного канала
Выполняем необходимые подписи (например, тип и вершина сети) и формируем сводный план инженерных сетей (рис. 8).

Рис. 8. Автоматически сформированный лист сводного плана инженерных сетей
Помимо плана, программа может выводить в автоматическом режиме другую важную документацию: топографические планшеты, разбивочный чертеж, план организации рельефа, картограмму земляных масс, план благоустройства территории.
Все вышеописанное представлено в записи вебинара (https://youtu.be/VRyJtx8lXn8?t=1155 ).
Причина №4. Расчеты из модели
Расчетные программы и САПР традиционно разделены, поэтому опытные проектировщики высоко ценят возможность интеграции проектных решений и расчетных модулей. Особенно удобно, когда такой функционал совмещен в рамках одной платформы.
Применительно к нашему проекту, помимо стандартного расчета картограммы, мы можем произвести расчет объемов работ по траншеям. Как мы создаем траншею, смотрите в записи нашего вебинара (https://youtu.be/VRyJtx8lXn8?t=1413 ). Инструменты nanoCAD GeoniCS позволяют в автоматическом режиме подсчитать объемы ручной и механизированной копки, объем и вес лишнего грунта, что в последующем может быть использовано для формирования сметы и ведомостей (рис. 9).

Рис. 9. Ведомость участков траншеи
Конечно, это далеко не все расчеты, которые требуется выполнять проектировщику гидротехнических сооружений. Программа nanoCAD GeoniCS совершенствуется, работы ведутся и над внутренними расчетными возможностями, и над интеграцией с различными расчетными программами.
Причина №5. Легко создать несущие конструкции
В этом блоке речь пойдет о втором продукте нашего симбиоза: программе nanoCAD BIM Конструкции, предназначенной для проектирования разделов КМ, КЖ и КД.
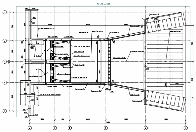
Библиотека этой системы содержит множество готовых параметрических элементов, которые мы использовали при разработке каркаса и конструктива нижней части галереи подъемных механизмов (рис. 10).

Рис. 10. Галерея подъемных механизмов
Однако нередко бывает так, что какого-либо параметрического элемента или узла в базе стандартных элементов нет. В своем видео мы рассмотрели создание такого объекта на примере элемента монолитного мостового блока водосброса (https://youtu.be/VRyJtx8lXn8?t=1728 ) и сегментного затвора (https://youtu.be/VRyJtx8lXn8?t=2060 ) – (рис. 11, 12).

Рис. 11. Мостовой блок водосброса
Оба этих элемента созданы на основе старых чертежей, которые были импортированы в nanoCAD и векторизованы для последующей работы.

Рис. 12. Сегментный затвор водосброса
Поскольку эти элементы, как и остальные объекты нашей программы, – параметрические, мы можем в автоматическом режиме получить необходимые чертежи. Выполняется это при помощи инструмента Видовой куб (рис. 13) и преднастроенных проекций.

Рис. 13. Видовой куб водосброса
На полученном листе формируется чертеж с выносками и обозначениями. При помощи инструментов Платформы или модуля «СПДС» можно скорректировать выноски, расставить размеры, определить привязки, дать чертежу наименование (рис. 14).

Рис. 14. План водосброса
На основании полученной проекции получаем разрез (рис. 15), дорабатываем его при помощи уже знакомых нам инструментов, расставляем высотные точки.

Рис. 15. Продольный разрез водосброса
Поочередно выгружаем спроектированные КЖ- и КМ-элементы в среду общих данных – СУИД CADLib Модель и Архив (рис. 16, 17).

Рис. 16. Сбор модели конструкций водосброса в CADLib Модель и Архив

Рис. 17. Модель конструкций водосброса и галереи подъемных механизмов в CADLib Модель и Архив
Подгружаем ЦММ, ранее выполненную в nanoCAD GeoniCS (рис. 18).

Рис. 18. Модель в CADLib Модель и Архив с подгрузкой ИГИ
Полученную модель необходимо проанализировать и проверить на коллизии по конструктивным элементам и инженерным сетям.
Как выглядит сборка единой модели, можно посмотреть в нашей записи (https://youtu.be/VRyJtx8lXn8?t=3157 ).
Вместо вывода
Мы продемонстрировали, как, используя специализированные программы из линейки nanoCAD, можно создать информационную модель гидротехнического сооружения. Попутно автоматизировали рутинные задачи инженера-проектировщика, произвели некоторые расчеты, получили требуемую документацию.
Система CADLib Модель и Архив позволит использовать созданную модель при разработке разделов ПОС и ППР, а также для внесения изменений на этапе строительства. При интеграции CADLib со специализированными программами – например, со СКИД – можно в автоматическом режиме получить исполнительную документацию. Далее модель должна перейти к службам эксплуатации и использоваться на протяжении всего жизненного цикла объекта.
Даниил Латыпов,
Екатерина Ливанова,
технические специалисты
ООО «Нормасофт»
No comments yet.